住まいの専門店 ハウスネット不動産ガイド販売物件検索中古マンション検索郡山市の中古マンションレーベン麓山THE MASTER
中古マンション 注目!

レーベン麓山THE MASTER

この物件のお支払い例 頭金/ボーナス払い0円 頭金0円

物件価格
4,480万円
月々の支払い

(初回お支払額)

{{ monthlyPayment?.toLocaleString() }}

※上記支払例の借入条件:金利{{ loanInterestRate }}%、借入総額4,480万円(うちボーナス払い{{ loanBonusMan }}{{ loanBonusUnit }}円)、借入期間{{ loanTerm }}年、{{ loanPaymentMethodName }}返済方式、ボーナス支払額(初回){{ bonusPayment?.toLocaleString() }}円

支払いシミュレーション

万円
万円
%
万円
ボーナス払い {{ loanTerm }}
0万円
5万円
10万円
15万円
20万円
25万円
30万円
35万円
40万円
45万円
50万円
× 閉じる

セールスポイント

21世紀記念公園 麓山の杜隣接、THE MALL郡山徒歩5分
子育て世帯にもおすすめ☆バルコニーからは四季折々の風景を楽しめます♪
【学区:金透小学校・郡山第二中学校】
インターネット料金2,513円

所在地・交通

所在地 福島県郡山市麓山1丁目  レーベン麓山THE MASTER     
交通 JR東北本線 郡山駅 徒歩15分 (1200m)
JR東北新幹線 郡山駅 徒歩15分 (1200m)
JR磐越西線 郡山駅 徒歩15分 (1200m)
その他交通
小学校校区 郡山市立金透小学校
中学校校区 郡山市立郡山第二中学校

※学校区は住所から自動判定したものであり、保証できる情報ではございません。正確な学校区はお問い合わせ下さい。

お問い合わせフォームはこちら

「人型アイコン」を地図上にドラッグすることで『Google ストリートビュー』に切り替わります。

※地図上の「対象地」は「福島県郡山市麓山1丁目 」付近を示しています。実際の場所ではない場合がございます。詳しくはお問い合わせください。

お問い合わせフォームはこちら

物件概要

価格 4,480万円
種目 中古マンション
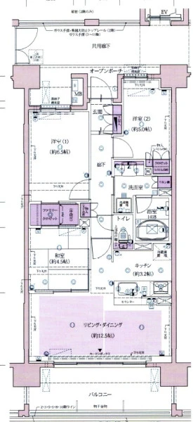
間取り 3LDK 間取り向き
専有面積 70.73㎡(壁芯) 建物構造 鉄筋コンクリート(RC)   
バルコニー面積 12.4㎡ バルコニー向き
階数 11階建 所在階 4階
築年月(竣工月) 2018年 6月 駐車場 1,000円
総戸数・総区画数 30 販売戸数・販売区画数 1
管理費 17,300円 積立金 14,780円
管理形態/管理方式 全部委託/ 日勤
建ぺい率/容積率 80% / 200% 都市計画 市街化区域
土地権利 所有権  地勢 平坦
用途地域 近隣商業 国土法
現況 居住中 取引態様 媒介
建築確認番号

取引条件等

引渡し 相談   

その他

設備 上水道、下水道、都市ガス、室内洗濯機置場、洗濯機置場、IHクッキングヒーター、システムキッチン、カウンターキッチン、食器洗浄乾燥機、トイレ、洗面台、洗面所、シャワー、バス・トイレ別、バス、浴室暖房、温水洗浄便座、追焚機能、浴室乾燥機、TV付浴室、収納スペース、バイク置場、駐輪場、南面バルコニー、モニタ付インターホン、給湯、エレベータ、宅配ボックス、3口以上コンロ、オートロック
特徴 南向き、和室、LDK15帖以上、始発駅、全居室収納
諸条件・相談 ペット可、インターネット料金2,513円
情報登録日 2025年9月30日 情報更新予定日 2025年12月16日
物件番号 690814

周辺環境

  • 【小学校】郡山市立金透小学校まで400m  

  • 【中学校】郡山市立第二中学校まで700m  

  • 【ショッピングセンター】ザ・モール郡山店まで400m  

  • 【コンビニ】ミニストップ郡山麓山店まで689m  

  • 【コンビニ】セブンイレブン郡山咲田2丁目店まで833m  

  • 【病院】公益財団法人湯浅報恩会寿泉堂綜合病院まで1024m  公益財団法人湯浅報恩会寿泉堂綜合病院

  • 【スーパー】シミズストア咲田店まで1263m  

  • 【駅】郡山駅まで1200m  郡山駅

  • 【スーパー】イオンタウン郡山まで2189m  イオンタウン郡山

この物件を見ている方は
こちらの物件も見ています

最近見た物件

TOP