住まいの専門店 ハウスネット不動産ガイド販売物件検索新築一戸建て検索会津若松市の新築一戸建て会津若松市八日町 1号棟 GRAFARE
新築一戸建て

会津若松市八日町 1号棟 GRAFARE

この物件のお支払い例 頭金/ボーナス払い0円 頭金0円

物件価格
2,990万円
月々の支払い

(初回お支払額)

{{ monthlyPayment?.toLocaleString() }}

※上記支払例の借入条件:金利{{ loanInterestRate }}%、借入総額2,990万円(うちボーナス払い{{ loanBonusMan }}{{ loanBonusUnit }}円)、借入期間{{ loanTerm }}年、{{ loanPaymentMethodName }}返済方式、ボーナス支払額(初回){{ bonusPayment?.toLocaleString() }}円

支払いシミュレーション

万円
万円
%
万円
ボーナス払い {{ loanTerm }}
0万円
5万円
10万円
15万円
20万円
25万円
30万円
35万円
40万円
45万円
50万円
× 閉じる

セールスポイント

【学区】日新小学校、第三中学校
・駐車スペース2台可能(車種による)
・七日町駅まで徒歩6分と交通の利便性◎
・コンビニ、スーパーまで徒歩10分圏内とお買い物に便利な立地♪

所在地・交通

所在地 福島県会津若松市八日町     
交通 JR只見線 七日町駅 徒歩6分 (437m)
JR磐越西線 会津若松駅 徒歩25分 (1975m)
その他交通
小学校校区 会津若松市立日新小学校
中学校校区 会津若松市立第三中学校

※学校区は住所から自動判定したものであり、保証できる情報ではございません。正確な学校区はお問い合わせ下さい。

お問い合わせフォームはこちら

「人型アイコン」を地図上にドラッグすることで『Google ストリートビュー』に切り替わります。

※地図上の「対象地」は「福島県会津若松市八日町 」付近を示しています。実際の場所ではない場合がございます。詳しくはお問い合わせください。

お問い合わせフォームはこちら

物件概要

価格 2,990万円
種目 新築一戸建て
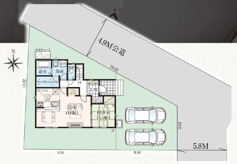
間取り 4LDK 間取り向き
土地面積 170.24㎡ 私道面積  
建物面積 107.22㎡ 建物構造規模 木造
2階建
バルコニー面積 バルコニー向き
築年月(竣工月) 2026年 2月 駐車場 有 
総戸数・総区画数 販売戸数・販売区画数
接道状況 北東    公道  幅4.9m    
東    公道  幅5.8m    
地目 宅地
建ぺい率/容積率 60% / 200% 都市計画 市街化区域
土地権利 所有権  地勢
用途地域 第一種住居 国土法
現況 建築中 取引態様 媒介
建築確認番号 第HPA-25-10136-1号

取引条件等

引渡し 期日指定  2026年 2月  

その他

設備 上水道、複層ガラス、モニタ付インターホン、カウンターキッチン、システムキッチン、3口以上コンロ、バス、シャワー、追焚機能、浴室乾燥機、浴室に窓、浴室暖房、トイレ2箇所、温水洗浄便座、洗面台、洗面所、シャンプードレッサー、床下収納、IHクッキングヒーター、オール電化、電気、下水道、駐車2台可
特徴 24時間換気システム、【日新小学校、第三中学校】・駐車スペース2台可能(車種による)・七日町駅まで徒歩6分と交通の利便性◎・コンビニ、スーパーまで徒歩10分圏内とお買い物に便利な立地♪
諸条件・相談
情報登録日 2025年12月6日 情報更新予定日 2026年2月27日
物件番号 782751

周辺環境

  • 【小学校】会津若松市立日新小学校まで697m  会津若松市立日新小学校

  • 【中学校】会津若松市立第三中学校まで1641m  会津若松市立第三中学校

  • 【駅】七日町駅まで437m  七日町駅

  • 【コンビニ】セブンイレブン会津西七日町店まで315m  セブンイレブン会津西七日町店

  • 【スーパー】リオン・ドール七日町店まで562m  リオン・ドール 七日町店

  • 【スーパー】業務スーパー会津日新店まで791m  業務スーパー会津日新店

  • 【スーパー】COOP BESTA ほんまちまで909m  COOP BESTA ほんまち

この物件を見ている方は
こちらの物件も見ています

最近見た物件

TOP